Zoom Villas

Plot / Land · Resale Jávea · Adsubia

€850.000
Ref# ZV2-61588
€850.000
Ref# ZV2-61588

Plot in Javea, Adsubia

Ref# ZV2-61588
  • Build
    152m2
  • Plot
    2.600m2
  • Bedrooms
    3 Bedrooms
  • Bathrooms
    2 Bathrooms

Plot / Land · Resale Jávea · Adsubia

Description

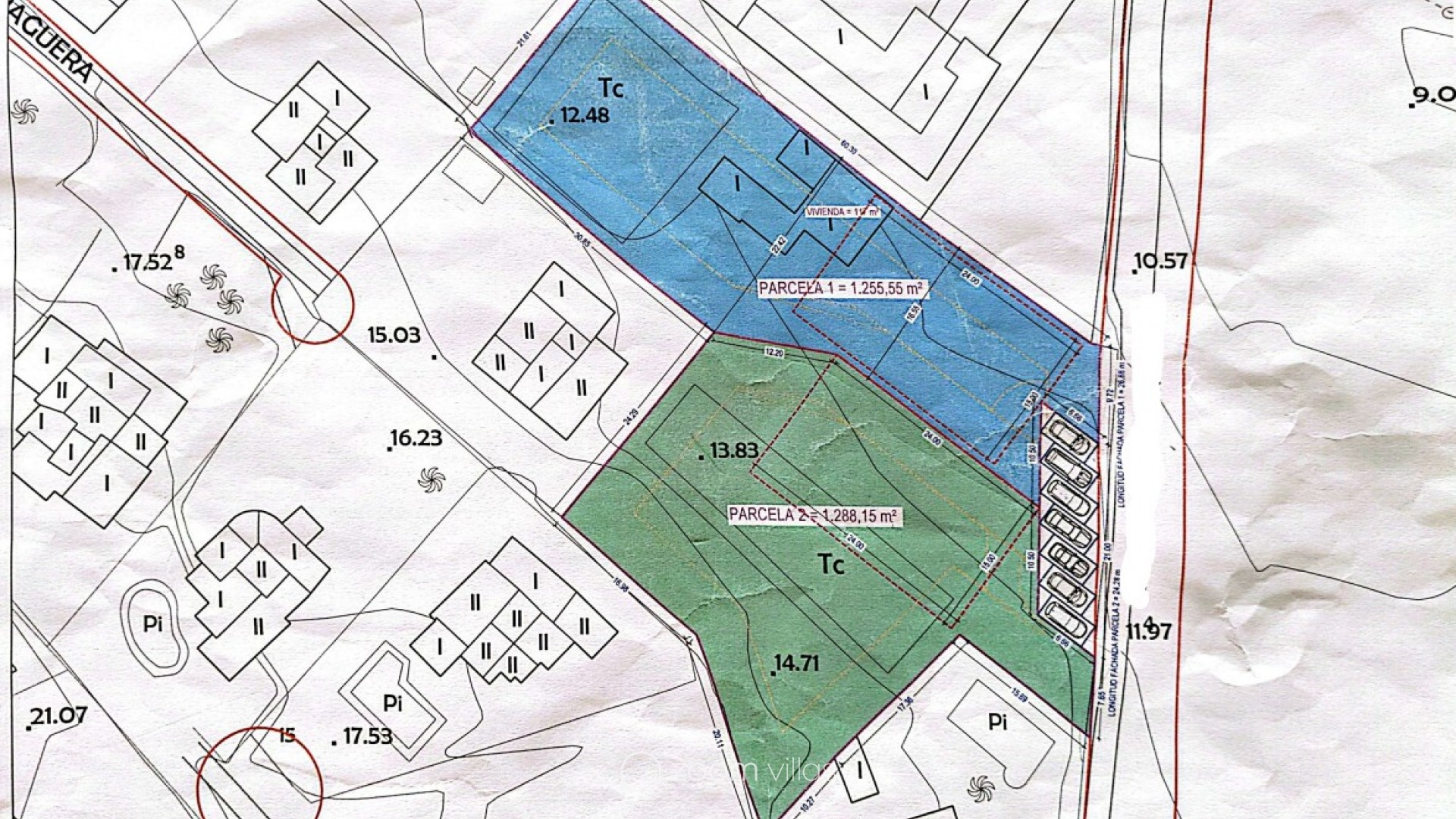
JAVEA - Plot for sale in Javea. This Plot in Javea of 2600 m² with house and possibility of dividing it into two building plots. This plot is located a very short distance from the beach of Jávea and offers an excellent investment opportunity. 

The plot can be perfectly divided into two separate building plots of about 1,300 m² each, suitable for realising two luxury villas.
Currently, the plot contains a single-storey villa with a built-up area of 152 m². The property features a living room with open kitchen, a second living-dining room with closed kitchen, three bedrooms, two bathrooms and a patio with a storage room.

This plot is within walking distance of Jávea's sandy beach and enjoys an excellent location near all amenities. Supermarkets, restaurants, doctors' surgeries, sports facilities and other daily necessities are all within walking distance. This location combines privacy with the comfort of a central location.

This property in Javea might be the right one for you? Ask us for viewing

Any questions? At Zoom Villas, estate agents in Moraira, we have all the answers and we will be happy to find your perfect fit home on the Costa Blanca.


Features

Bedrooms: 3
Bathrooms: 2
Built: 152m2
Plot: 2.600m2
garden
terrace
Water
Solarium
Electricity
Patio
Built-in cabinets
Roller Shutters
Storage

Location

Ask for info

Responsable del tratamiento: Zoom Villas SL, Finalidad del tratamiento: Gestión y control de los servicios ofrecidos a través de la página Web de Servicios inmobiliarios, Envío de información a traves de newsletter y otros, Legitimación: Por consentimiento, Destinatarios: No se cederan los datos, salvo para elaborar contabilidad, Derechos de las personas interesadas: Acceder, rectificar y suprimir los datos, solicitar la portabilidad de los mismos, oponerse altratamiento y solicitar la limitación de éste, Procedencia de los datos: El Propio interesado, Información Adicional: Puede consultarse la información adicional y detallada sobre protección de datos Aquí.
WhatsApp